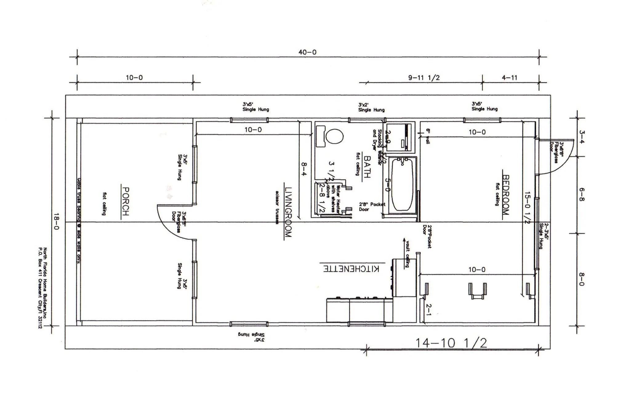
1 bed · 1 bath · 540 square feet · porch 180 square feet
1 Bedroom, 1 Bath Mother-in-Law Suite or great getaway with high efficiency mini split air conditioning system. Little maintenance...
Minimal Living
1 Bedroom, 1 Bath Mother-in-Law Suite or great getaway with high efficiency mini split air conditioning system. Little maintenance...